Over the top!
Luxus, öt csillagos környezetben!
Aki a hatalmas tereket, a tökéletes lokációt, a luxust szereti és akinek igénye van arra, hogy otthon ússzon, teniszezzen, szaunázzon, az megtalálta új otthonát.
A 2. kerület, egyik legkedveltebb részén, a Hűvösvölgyi úton, egy négyszintes, teljesen bebútorozott, 10 szobás, 6 fürdőszobás ház, 6 autónak helyett biztosító garázzsal várja új lakóit a következő paraméterekkel:
1021 Budapest, Hűvösvölgyi út
Telek mérete: 5 403 m2
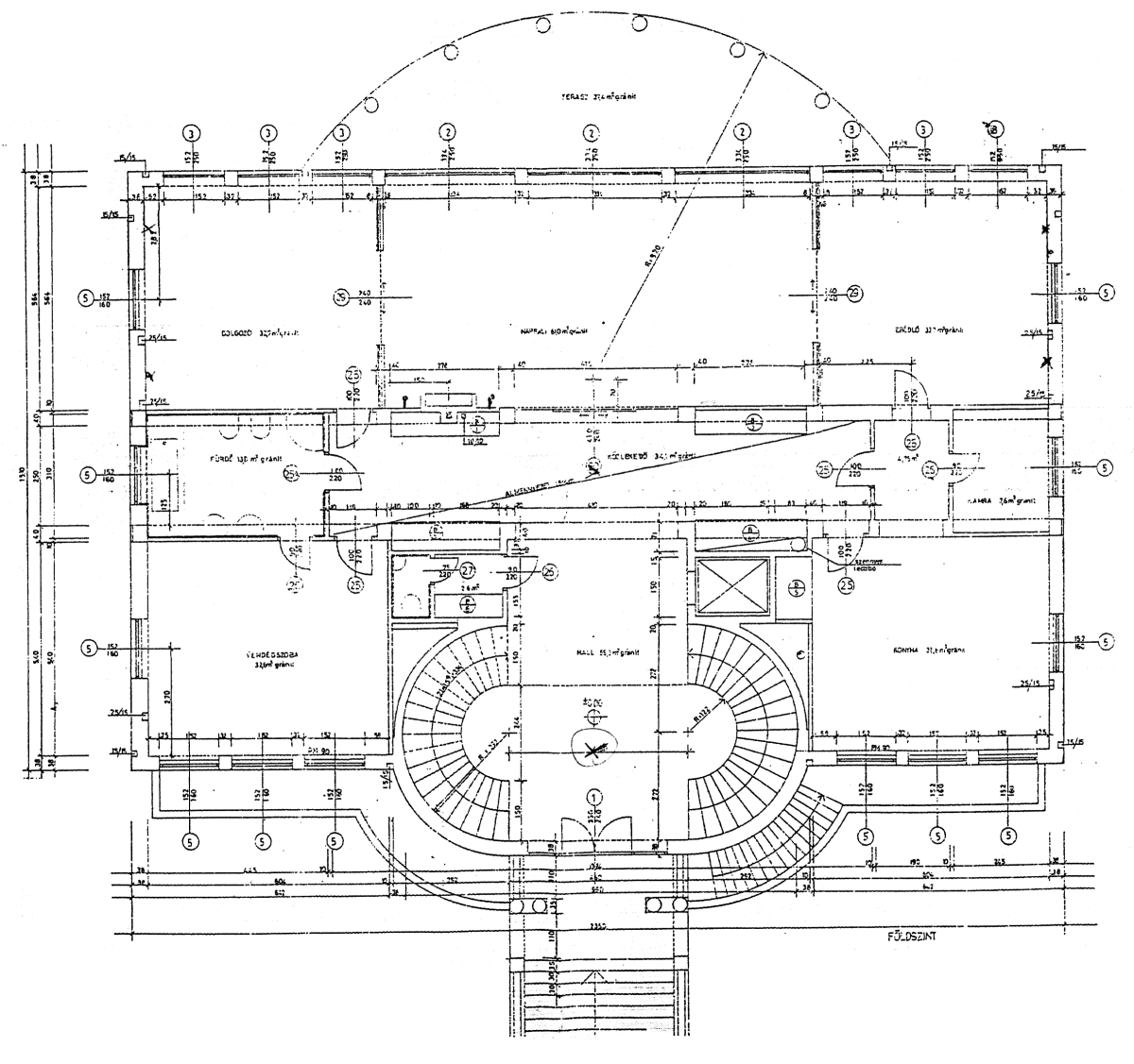
- beltér alapterülete összesen: 998,6 m2
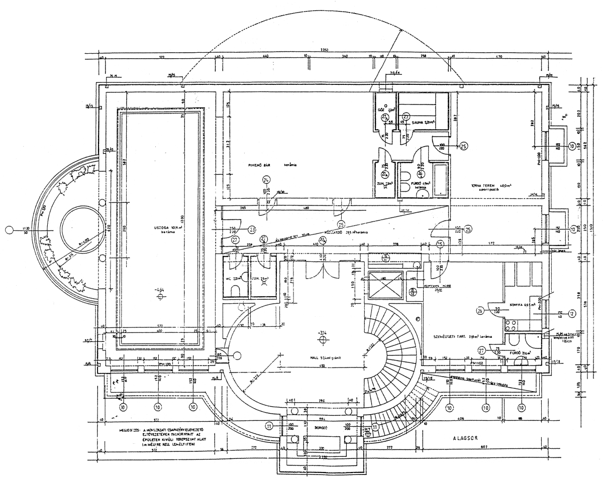
- alagsor, medence szint: 329,37 m2
- földszint: 313,65 m2, padló burkolat: gránit
- emelet: 266,19 m2 padló burkolat : gránit és parketta
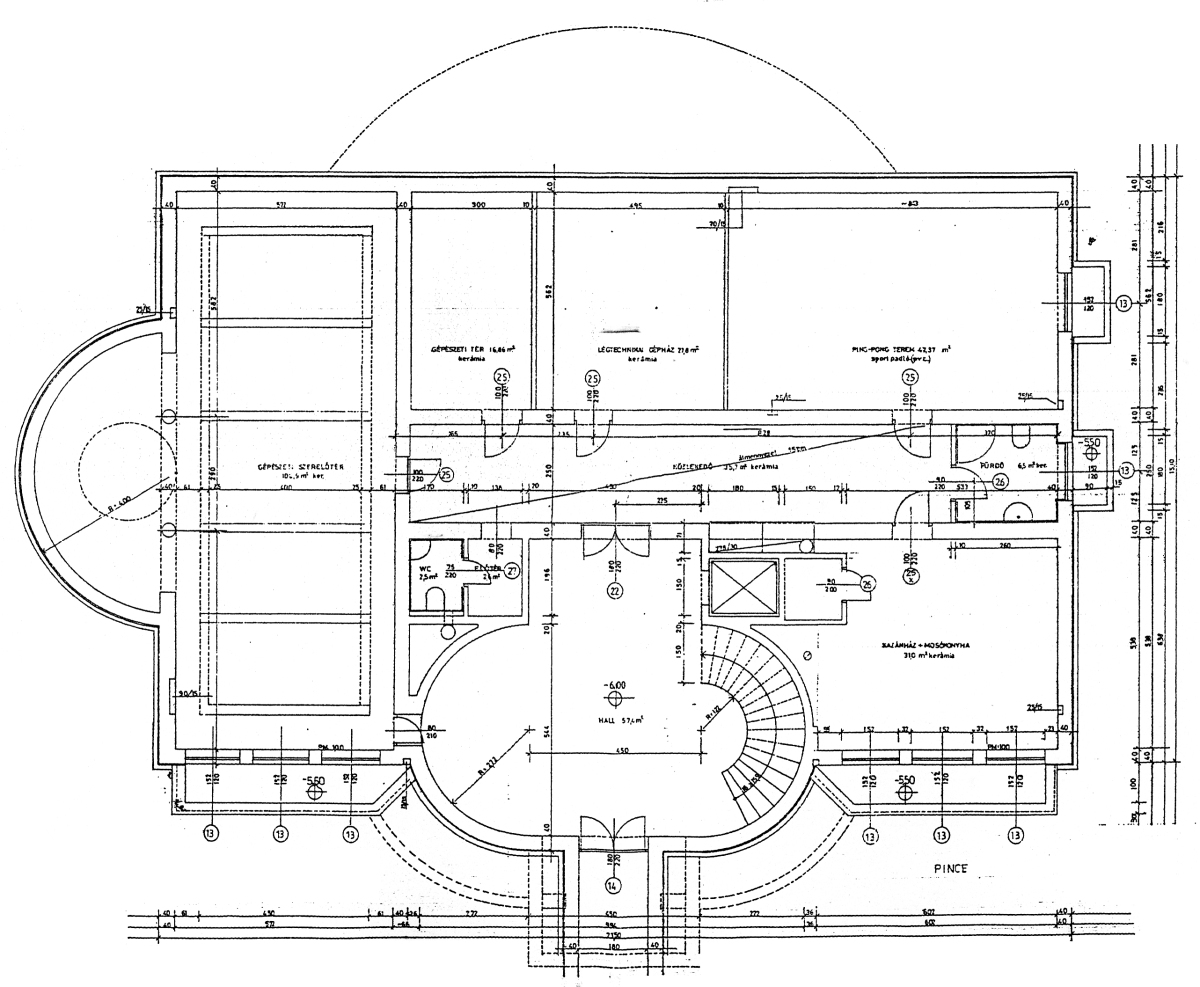
- tetőtér: 39,39 m2 burkolat: fagyálló kerámia
- melléképület: 50 m2
tetőterasz mérete: 150,4 m2
melléképület mérete: 50 m2
építés éve: 2008. Tervező. Hoffer Miklós kétszeres Ybl-díjas.
a szobák száma: 10 db (2 dolgozó, 1 nappali, 1 ebédlő 3 háló, földszinti aula, 1 vendégszoba, 2 személyzeti szoba)
Földszint, emelet: elegánsan bútorozott, kristály csillárok
fürdőszobák száma: 6 + 1 (melléképületben)
Az extrák két részre bontva, mint:
1. rész
Uszodatér: 101 m2
•belső úszómedence: 12 x 4 méter; bárhelyiség
•külső medence 14 x 6 méter – jakuzzival, napozóval, melléképülettel
•tetőteraszon található medence: 6 x 3 méter
•jakuzzik: 3 db (beltéri, külső és tetőteraszon)
•teniszpálya: van
•konditerem: van
•szaunák száma: 3 db (alagsor, tetőterasz, melléképület), 4 személyesek
•nedves gőz
2. rész
•elektromos redőny – földszinten, emeleten minden szobában, plusz zsalugáter
•lift: van
•szennyes ledobó: van
•légkondi: van
•teraszok száma négyzetméterrel:
– földszinten 1 db: 37,4 m2
– emeleten 1 db: 37,4 m2
– tetőterasz (napozóterasz): 150,4 m2
– melléképület teteje: 50 m2
•garázsban kocsibeállók száma:6
•fűtésrendszer, gázkazánok
Bérleti díj: 12 000 EUR / hó + rezsiköltség
Szaka József – Élet&Stílus Ingatlaniroda
További ingatlanokat a honlapunkon talál: eletstilusingatlan hu
ENERGETIKAI TANÚSÍTVÁNY (zöldkártya ingatlanhoz)
2012. január 1.-től a használt lakások adásvételénél is kötelező! Hívjon! Elkészítjük Önnek!
ÜGYVÉD-0,7%
Megbízható ügyvédre van szüksége? Irodánk ügyvédje a vételár 0,7 %-ért elkészíti az adásvételi szerződését. Ha kínálatunkból vásárol, akkor még ennél kedvezőbb is lehet ez a díj.
LAKÁSBIZTOSÍTÁS
Ingatlant vásárolt? Vagy a régi biztosítását lecserélné? A Magyarországon tevékenykedő összes biztosító ajánlatai közül kiválasztjuk Önnek az árban és a szolgáltatás minőségében a leginkább megfelelőt. Mindezt teljesen ingyen.
HITEL
Cégünk hitel tanácsadója-avelünk leszerződött – Magyarországon található összes bank ajánlata közül megtalálja Önnek személyre szabottan a legjobbat!
LAKBERENDEZÉS
Nincs ötlete, hogy mit lehetne kihozni a lakásából, hogyan lehetne újjá varázsolni? Mi segítünk Önnek!
LAKÁSFELÚJÍTÁS
Megbízható szakemberre lenne szüksége a lakásfelújításhoz? Nálunk megtalálja!

















































